Marcelo Tinelli: La Deuda y el Imperio ShowMatch
Descubre la compleja realidad de Marcelo Tinelli: una deuda millonaria contrasta con el rotundo éxito...
El trabajo en alturas representa una de las actividades de mayor riesgo en el ámbito industrial y de la construcción. En YPF, la seguridad es un valor intransable, y por ello, la ejecución de estas tareas está regulada por un estricto conjunto de normativas y procedimientos diseñados para proteger la integridad de cada colaborador. Comprender los documentos, requisitos y protocolos no es solo una obligación, sino el pilar fundamental de una cultura de prevención. Este artículo detalla todo lo que necesitas saber para realizar trabajos en altura de manera segura, cumpliendo con los más altos estándares.
Antes de profundizar en los requisitos, es crucial definir el alcance de estas actividades. Según la normativa vigente, como el Decreto 911/96, se considera trabajo en alturas a toda tarea que implique circular o trabajar a un nivel cuya diferencia de cota sea igual o mayor a dos metros con respecto del plano horizontal inferior más próximo. Esta definición no se limita a trabajar sobre andamios o estructuras elevadas; también incluye tareas en pozos, excavaciones de más de 1.5 metros de profundidad, tanques enterrados y situaciones similares que presenten un riesgo de caída a distinto nivel.

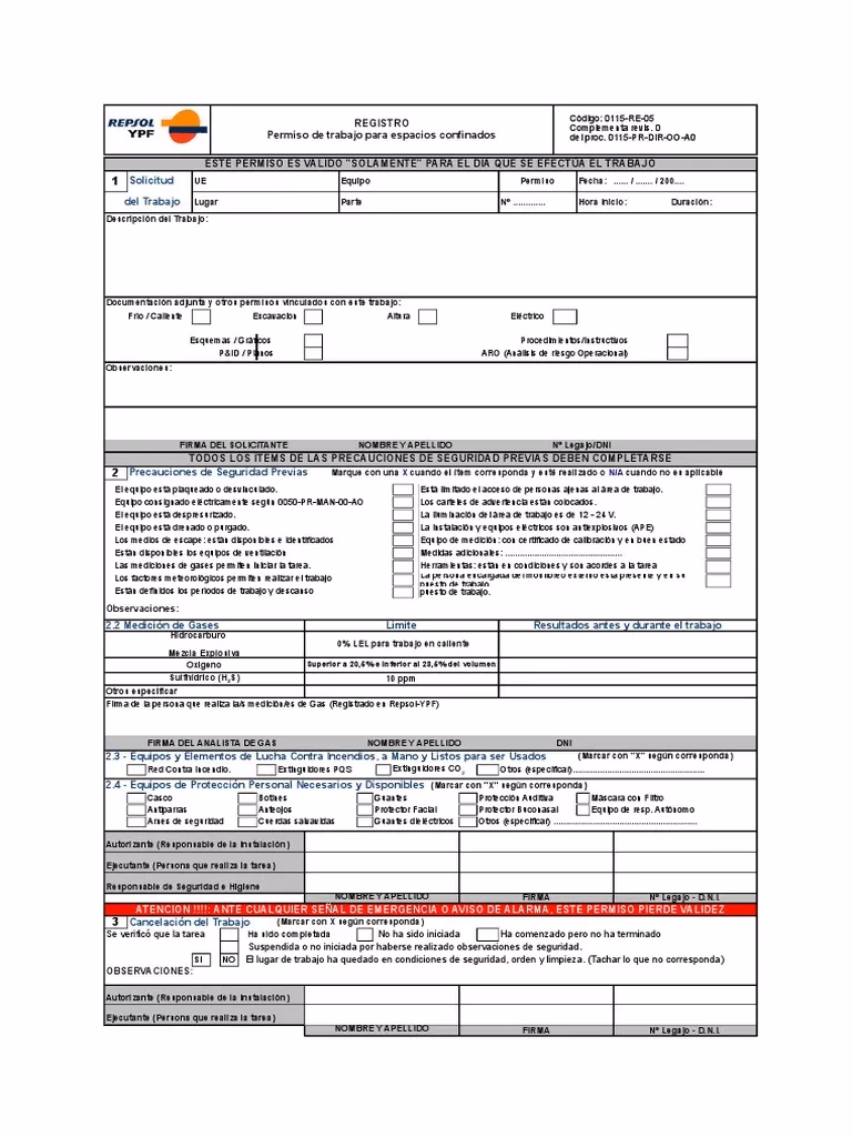
La pregunta más frecuente es: ¿cómo se llama el documento para trabajar en altura? La respuesta es el PETAR (Permiso Escrito para Trabajo de Alto Riesgo), también conocido simplemente como Permiso de Trabajo en Alturas. Este documento es mucho más que un simple formulario; es una herramienta de gestión de riesgos crítica y de carácter obligatorio antes de iniciar cualquier labor en altura.
El PETAR funciona como una lista de verificación y una autorización formal. Su propósito es asegurar que se han identificado todos los peligros potenciales y que se han implementado las medidas de control necesarias. No se puede iniciar ninguna tarea sin que este documento esté completamente diligenciado y firmado por el personal responsable y los trabajadores involucrados. Debe permanecer visible en el lugar de trabajo durante toda la ejecución de la tarea.
El PETAR es una herramienta operativa, pero se enmarca dentro de una estrategia más amplia: el Programa de Prevención y Protección Contra Caídas. Toda operación de YPF debe contar con este programa documentado, el cual establece el marco general para la gestión del riesgo de caídas. Este programa debe ser diseñado, administrado y asegurado por un profesional competente en Seguridad y Salud en el Trabajo (SST).

Para que el programa sea efectivo, es fundamental que se asignen roles y responsabilidades claras. Aunque los nombres de los cargos pueden variar, las funciones son universales y esenciales para un sistema robusto.
| ROL | RESPONSABILIDAD PRINCIPAL | PERFIL REQUERIDO |
|---|---|---|
| Administrador del Programa | Diseñar, implementar y asegurar el cumplimiento del programa de prevención contra caídas en toda la organización. | Profesional en SST con licencia vigente, formación específica como coordinador y conocimiento profundo de la normativa. |
| Persona Calificada | Calcular, diseñar, evaluar y autorizar puntos de anclaje y estructuras para la protección contra caídas. Garantiza la ingeniería del sistema. | Ingeniero o profesional con la competencia y certificación para realizar cálculos estructurales conforme a la ley. |
| Coordinador de Trabajo en Altura | Verificar en campo las condiciones de seguridad, identificar peligros antes y durante la tarea, avalar el PETAR y asegurar el cumplimiento de los procedimientos. | Persona con curso de nivel coordinador de trabajo en alturas y experiencia probada. |
| Trabajador Autorizado | Realizar la tarea asignada cumpliendo todas las medidas de seguridad, inspeccionar su propio equipo y reportar cualquier condición insegura. | Personal con capacitación y entrenamiento certificado y vigente como trabajador autorizado. |
| Ayudante de Seguridad | Apoyar en la implementación de las medidas de seguridad, como la delimitación del área, el control de acceso y la prevención de caída de objetos. | Personal con formación como trabajador autorizado, enfocado en las tareas de control del entorno. |
Ningún trabajador puede realizar tareas en altura sin contar con un certificado de capacitación y entrenamiento vigente. Esta formación no es un trámite, sino un proceso intensivo teórico-práctico que dota al trabajador de las habilidades necesarias para identificar riesgos, usar correctamente los equipos y actuar en caso de emergencia.
Las medidas de control se dividen en dos grandes grupos, y la jerarquía de control siempre priorizará la eliminación del riesgo. Cuando no es posible eliminarlo, se implementan estas protecciones.
Son sistemas de ingeniería o barreras físicas que no requieren intervención del trabajador para ser efectivas. Son la primera opción de protección colectiva.

Son aquellas que involucran directamente al trabajador y requieren su participación activa. El componente principal es el Sistema Personal de Detención de Caídas (SPDC).
¿Qué sucede si, a pesar de todas las medidas, ocurre una caída? Tener un plan de rescate detallado, practicado y con los recursos adecuados es obligatorio. No basta con llamar a emergencias. El plan debe incluir:
Generalmente, a partir de los 2 metros sobre un nivel inferior. Sin embargo, cualquier trabajo en pozos, zanjas o excavaciones de más de 1.5 metros de profundidad también se considera trabajo en altura y requiere controles similares.
Es el Permiso Escrito para Trabajo de Alto Riesgo. Es un documento obligatorio que funciona como una lista de chequeo y autorización para asegurar que todos los riesgos han sido controlados antes de iniciar la tarea.
La normativa suele exigir un reentrenamiento anual. Sin embargo, la empresa puede establecer periodos más cortos. También es mandatorio si cambian los equipos, los procedimientos o si se evidencia que un trabajador ha perdido competencia.

No. El uso de cinturones de seguridad está prohibido para la detención de caídas, ya que concentran toda la fuerza del impacto en la cintura, lo que puede causar lesiones graves. Solo se debe utilizar un arnés de cuerpo completo certificado.
La responsabilidad es compartida. Lo firma el supervisor o coordinador que autoriza la tarea, asegurando que las condiciones son seguras, y también los trabajadores que la ejecutarán, como constancia de que comprenden los riesgos y los controles a aplicar.
En conclusión, la seguridad en trabajos de altura en YPF se construye sobre una base sólida de planificación, competencia y rigurosidad. Desde el programa general de prevención, pasando por la capacitación certificada de cada persona, hasta la correcta ejecución del PETAR en el terreno, cada paso es un eslabón en una cadena de protección que tiene un único objetivo: que todos los colaboradores regresen a casa sanos y salvos al final de cada jornada.
Descubre la compleja realidad de Marcelo Tinelli: una deuda millonaria contrasta con el rotundo éxito...
¿Buscando el famoso Balneario 12 en Mar del Plata? Te contamos dónde queda, cómo llegar...
¿Tu moto se incendia y no sabes qué hacer? El pánico puede ser tu peor...
Descubre qué es el flowback, el crucial fluido que emerge tras la fracturación hidráulica. Entiende...