Débito Automático del Nación para Clientes YPF
Descubre cómo funciona el débito automático del Banco Nación y cómo puedes usarlo para tus...
En el dinámico y exigente entorno de la industria energética, las operaciones de izaje de cargas representan una actividad cotidiana y, a la vez, una de las más críticas en términos de riesgo. Mover equipos pesados, materiales y componentes es fundamental para el avance de los proyectos, pero una maniobra mal ejecutada puede tener consecuencias devastadoras. Es aquí donde la normativa interna, y específicamente el Artículo 371, se erige como el pilar fundamental que garantiza que cada levantamiento se realice bajo los más estrictos estándares de seguridad, protegiendo tanto al personal como a los activos de la compañía.
Este artículo no es simplemente un conjunto de reglas; es una filosofía de trabajo que promueve la planificación meticulosa, la verificación constante y la asignación clara de roles. Comprender a fondo sus directrices es una responsabilidad ineludible para todos los involucrados en estas tareas, desde el supervisor hasta el señalero. A continuación, desglosaremos los aspectos más importantes de esta normativa y cómo su correcta aplicación transforma una operación de alto riesgo en un procedimiento controlado y exitoso.

El Artículo 371 es el marco regulatorio que establece las normas y procedimientos de seguridad obligatorios para el diseño, construcción, operación, mantenimiento e inspección de todos los equipos y accesorios de izaje. Su objetivo principal es simple pero vital: prevenir incidentes. Para lograrlo, se basa en tres principios clave que deben ser la guía de cada maniobra:
Ignorar cualquiera de estos principios no es una opción. El cumplimiento del Artículo 371 es la garantía de que se han tomado todas las medidas previsibles para controlar los riesgos inherentes al movimiento de cargas pesadas.
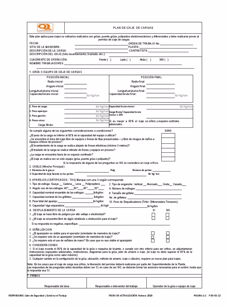
Uno de los conceptos más importantes que emanan de la normativa es la obligatoriedad de elaborar un Plan de Izaje. Este documento no es un mero trámite burocrático, sino la materialización de la planificación de la tarea. Es un análisis detallado y por escrito de cada aspecto de la maniobra, que debe ser diligenciado y consensuado por el equipo clave antes de enganchar la primera eslinga.
El plan debe contener, como mínimo, la siguiente información:
Este documento asegura que todos los involucrados compartan la misma visión de la tarea, entiendan los riesgos y conozcan su papel exacto en la ejecución. Es la herramienta que transforma la improvisación en un procedimiento controlado y predecible.

El Artículo 371 es claro al especificar que el Plan de Izaje debe ser elaborado y acordado por un equipo multidisciplinario. La seguridad no recae en una sola persona, sino en la sinergia y la comunicación constante entre los tres roles clave de la operación. Cada uno tiene una responsabilidad definida e intransferible.
| Rol | Responsabilidades Clave |
|---|---|
| Supervisor de Izaje | Es el máximo responsable de la operación. Debe verificar que el Plan de Izaje esté completo y sea correcto, que las condiciones del sitio sean seguras (clima, terreno), que todo el personal esté calificado y que se hayan implementado todas las medidas de control de riesgos. Es quien autoriza el inicio de la maniobra. |
| Operador del Equipo | Es el responsable de la operación segura y eficiente del equipo de izaje. Debe conocer a la perfección las capacidades y limitaciones de su máquina, verificar su estado antes de cada uso y seguir exclusivamente las señales del señalero designado. Tiene la autoridad y la obligación de detener la operación si considera que existe una condición insegura. |
| Señalero / Aparejador | Es el experto en la preparación y aseguramiento de la carga. Inspecciona todos los accesorios de izaje (eslingas, ganchos, grilletes), asegura que la carga esté correctamente enganchada y balanceada, y es el único autorizado para dar señales al operador. Debe mantener la carga y el área de trabajo a la vista en todo momento. |
La colaboración y el respeto mutuo entre estos tres roles son esenciales. Una comunicación clara, utilizando el código de señales estándar y equipos de radio si es necesario, es la base para una ejecución impecable.
Cualquier equipo o accesorio que presente un defecto (como un cable deshilachado, un gancho deformado o una eslinga cortada) debe ser retirado de servicio de inmediato. Se le debe colocar una etiqueta visible de “No Usar” o “Fuera de Servicio” y debe ser reportado al supervisor para su reparación por personal calificado o su descarte definitivo. Bajo ninguna circunstancia se debe utilizar un elemento defectuoso.

No. Para cualquier izaje que no sea considerado rutinario y de bajo riesgo, la elaboración de un Plan de Izaje escrito es mandatoria. Este requisito asegura que se realice un análisis formal de los riesgos y se establezcan los controles adecuados. Para izajes críticos (cargas de gran peso, operaciones cerca de equipos energizados, etc.), el plan debe ser aún más detallado y contar con aprobaciones de niveles superiores.
Cualquier persona involucrada en la operación (supervisor, operador, señalero) o incluso un observador que identifique una condición de riesgo inminente, tiene la autoridad y la responsabilidad de solicitar la detención de la maniobra. La política de “Stop Work Authority” (Autoridad para Detener el Trabajo) prevalece sobre cualquier otra consideración. La seguridad es siempre la prioridad número uno.
Las tablas de carga son la “cédula de identidad” de la capacidad de una grúa. Son gráficos y datos proporcionados por el fabricante que indican el peso máximo que la grúa puede levantar de forma segura en función de diferentes variables, como el ángulo de la pluma, el radio de operación (distancia horizontal desde el centro de la grúa hasta la carga) y la configuración del contrapeso. Son la base fundamental para la elaboración del Plan de Izaje, ya que permiten verificar que la maniobra planificada se encuentra dentro de los límites seguros de operación del equipo.
Descubre cómo funciona el débito automático del Banco Nación y cómo puedes usarlo para tus...
Descubre cómo Argentina, gracias al gigante Vaca Muerta y el liderazgo de YPF, se ha...
Descubre cómo maximizar tus ahorros en cada carga de combustible. Te contamos todos los descuentos...
Descubre el fascinante proceso de refinación del petróleo. Desde el crudo extraído de la tierra...